Creative


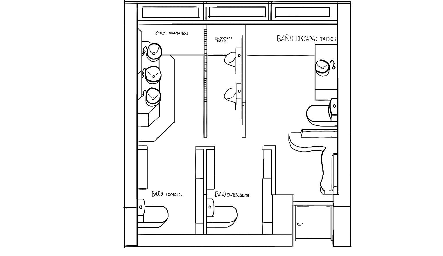
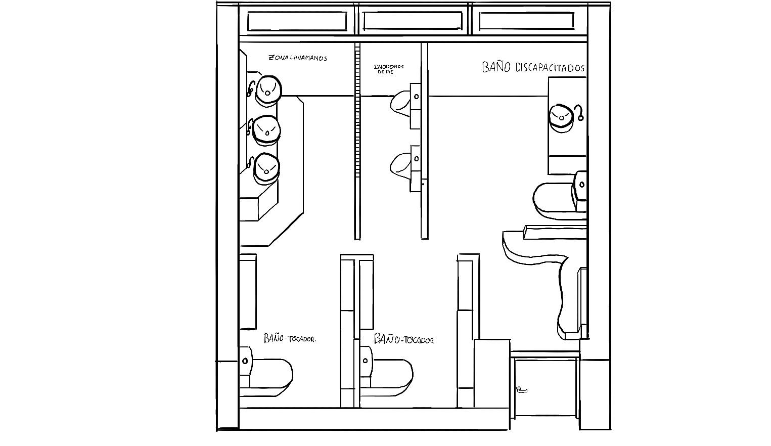
An incredibly lifelike, richly detailed, photorealistic floorplan photo of a hotel bathroom set in a space filled with a vibrant, opulent Indian exuberance. The scene is illuminated by bright midday spring sunlight, creating a cheerful and lively atmosphere. Captured with a wide-angle lens, emphasizing the intricate spatial arrangement and diverse textures within the bathroom. The expansive floorplan reveals a carefully divided space of four distinct zones. Dominating the upper right is the "Baño Discapacitados," a handicapped-accessible bathroom, impeccably designed for comfort and ease of use. Moving leftwards, two "Inodoros de Pie" (standing toilets) are presented, separated by a delicate, intricately latticed celosía, offering a touch of traditional Indian artistry. This partition subtly divides them from the next area, characterized by a semi-hexagonal countertop adorned with not one, but three gleaming lavamanos (sinks), each reflecting the ambient light. In the lower section of the floorplan, two parallel "Aseo-Tocador" (powder rooms) are neatly arranged, running alongside the longitudinal wall. These compact yet functional spaces promise privacy and convenience. Directly opposite the entrance, in the lower right quadrant, a striking L-shaped bench is featured, its