ReRoom

Living Room,
Minimalist Haven
Original
Source Image
Uploaded
Generated(880x768)
source
1.31%
Result Images
Result Images
Result Images
Show more

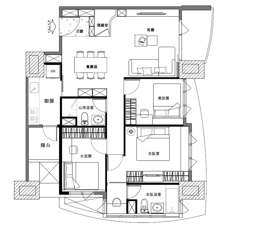
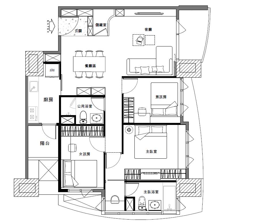
An incredibly lifelike, richly detailed, photorealistic floorplan photo of a minimalist haven. The scene is illuminated by soft, diffused natural light, creating a serene and uncluttered atmosphere. Captured with a wide-angle lens, emphasizing the spaciousness and excellent functionality of the modern, elegant design, with precise lines and clear divisions of space. The envisioned photograph showcases a monochromatic palette of whites, grays, and subtle pastels, accented by sleek metal and wooden furniture. Surfaces are intentionally kept clutter-free, with minimal decor, save for an artfully placed photography book and abstract wall art adorning a wall. A few strategically placed indoor plants add a touch of organic life, enhancing the zen-inspired aesthetic. The composition is highly organized, with each room element—the living area, dining space, bedrooms, kitchen, and bathrooms—clearly defined and contributing to an overall feeling of streamlined simplicity. The perspective draws the viewer's eye through the various rooms, highlighting the flow and connectivity of the living space, with clean lines and thoughtful placement of essential furnishings.