ReRoom

Office,
Minimalist Haven
Original
Source Image
Uploaded
Generated(768x904)
source
1.82%
Result Images
Result Images
Result Images

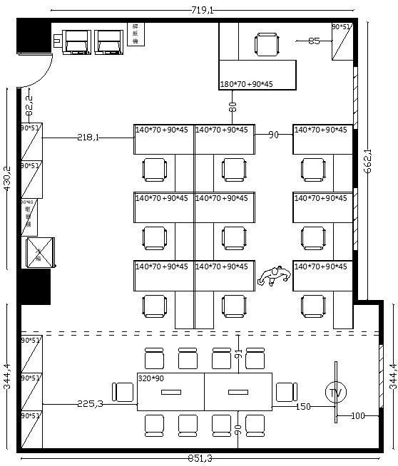
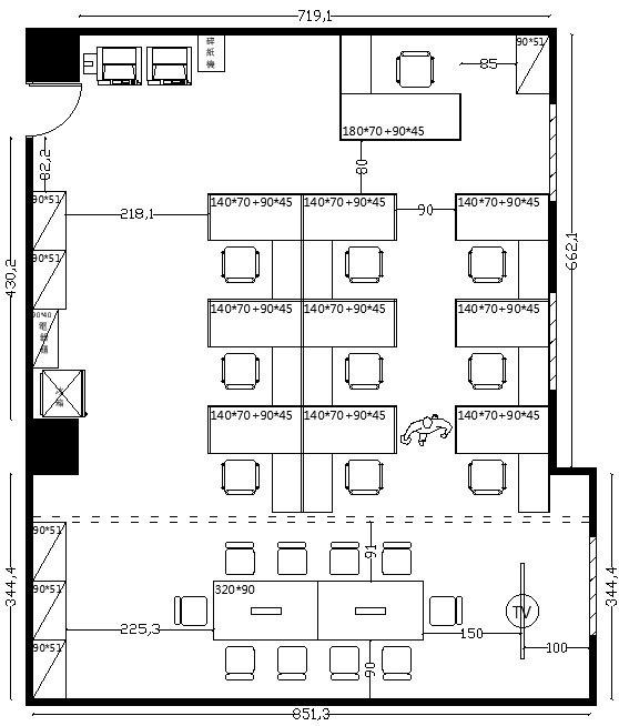
An incredibly lifelike, richly detailed, photorealistic aerial shot of a spacious public office, a minimalist haven. The scene is illuminated by bright, diffused overhead lighting, creating a clean and functional atmosphere. Captured with a wide-angle lens, emphasizing the clean lines and organized layout of the workspace. The floor is a smooth, cool-toned terrazzo, reflecting the light subtly and adding to the room's overall sense of openness. In the upper left, a small reception area is suggested with two sleek, modern chairs facing a dark, monolithic reception desk. To the right of the entrance, against the wall, a compact copier or printer stands next to a small, elegant fish tank cabinet, approximately 40cm wide, 30cm deep, and 60cm tall. The main office area is divided into distinct zones by implied movable glass partitions. The upper section features rows of identical workstations, each with a light-colored desk surface and a simple, modern chair. These desks are arranged in neat configurations, suggesting a collaborative yet organized environment. Further back, a private office area is outlined, hinting at a more secluded workspace. Separating this area from the desks is a clear, transparent partition. In the lower portion of the office, a distinct meeting room is depicted, dominated by a long, rectangular table surrounded by chairs, ideal for group discussions. Opposite the meeting table, a television screen is mounted on a simple stand, suggesting presentation capabilities. The overall impression is one of efficiency, spaciousness, and a quiet dedication to work, with an emphasis on functional design and muted, professional colors.